top of page

Photo By: Chaz D Photography
"One With Nature"

Welcome to the journey of Erik and Tracy an animal-loving family on a quest to build their dream home. As they navigate their contrasting styles— his love for bold colors and Tracy's preference for a serene white palette, tensions begin to rise. But fear not! Radd Builders is here to create a delightful surprise that to bring joy to the entire family and harmonize their visions. Stay tuned for the exciting transformation ahead!
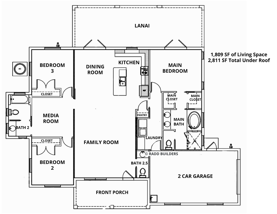
VIEW THIS PLAN

VIEW PHOTOS

Photos in Gallery Are the Property of Chaz D Photography and used with permission
bottom of page




















